Šta je potrebno pe pe za podzemnu instalaciju
Za vodovod ili gasovod najudobnije je ugraditi kuglični ventil za podzemnu ugradnju plastike. Ovaj dizajn može da obezbedi dovoljno dug period rada i bez problema sa održavanjem.
Postoji puno opcija za materijale za takve ventile, ali je plastika najpoželjnija, jer se uopšte ne plaši vlage i korozije. Objasnit ćemo kako ga instalirati i demonstrirati tematski video u ovom članku.

PE dizalice
Opis

- Cevi od polietilena su mnogo jeftinije od metala, tako da većina naselja i različitih industrijskih postrojenja ne radi bez komunikacionih puteva iz ovog materijala. Pored toga, cijena PE krana je mnogo manja nego kod čeličnog analoga, ali je vek trajanja neizmerno duži, što također igra značajnu ulogu u izboru materijala za cjevovode.
- Rasprostranjena upotreba ovog mehanizma je takođe zahvaljujući prilično širokom rasponu prečnika. - može se montirati na cevi prečnika od 20 do 315 mm i može raditi na temperaturama od -20 ° C do +40 ° C, što je prihvatljivo za bilo koji region Ruske Federacije sa podzemnom instalacijom.

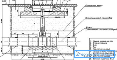
- Pored toga, može se montirati kuglični ventil za podzemnu ugradnju, bez opremanja za ovaj poseban bunar - za njegovo podešavanje dovoljno je izvaditi kontrolni mehanizam, a sam čvor se može pokriti zemljom. Udaljenost od površine cevi može biti od 1.650 mm do 2.750 mm.
- Šipka teleskopa se produžava kvadratnim šupljim profilom, na kome je zavaren šestougaoni rukav., koji se montira na osu dizalice i rotira pomoću kvadratnog / šestougaonog metalnog štapa.
- Krovna podzemna krana je napravljena od polimernih materijala (dizajn je namenjen za zavarivanje ili za spojeve cevi). Izlazi na ovom mehanizmu su napravljeni od PE 100 SDR11 - to je sasvim dovoljno za gasovode sa pritiskom od 10 bara i vodovoda sa pritiskom od 18 bara.
Napomena Zaštitni poklopac od polietilena je instaliran na produžnom kablu dve tankoslojne cevi. Oni mogu slobodno da se kreću jedan u drugi.
Specifikacije nekih dizalica

| Pogled Aplikacija | Za gas 10 bar, za vodu 16 bara |
| SDR | SDR11 |
| Materijal | PE80 / PE100, PE2406 / PE3408 |
| Otvaranje / zatvaranje | ? okretanje |
| Temperatura | Od -29 do 600S |
| Vrsta prolaza | Potpuno stvoren |
| Pomoćni tip šipke | Teleskopski nastavak |
| Tip purge | Bez čišćenja, 1 čistka, 2 čišćenja |
| Zavarivanje karoserije i utičnica | Električni ili spojni |
| Testovi standarda | EN 1555, ANSI / ASTM B16. 40 |
SDR11 tabela

| Ne | Ime | Od čega je napravljen |
| 1 | Stanovanje | Polietilen (PE) |
| 2 | Truba | Polietilen (PE) |
| 3 | Lopta | Polipropilen (PP) |
| 4 | Prostor za loptu | NBR (guma) |
| 5 | Prsten za podršku | Polipropilen (PP) |
| 6 | Stock | Acetal |
| 7 | Konektor | Polipropilen (PP) |
| 8 | Bearing ring | NBR (guma) |
| 9 | Adapter prsten | NBR (guma) |
PE Loptasti ventili
| Prečnik (mm) | 20 | 0.560 | 20 | 0.560 | 20 | 0.560 | 20 | 0.560 | 20 | 0.560 | 20 | 0.560 | 20 | 0.560 | 20 | 0.560 | 20 | 0.560 |
| Masa (kg) | 25 | 0.560 | 25 | 0.560 | 25 | 0.560 | 25 | 0.560 | 25 | 0.560 | 25 | 0.560 | 25 | 0.560 | 25 | 0.560 | 25 | 0.560 |
Dimenzije. Standardno
| Prečnik (mm) | Pogled |
| 63 | Bez brzine |
| 90 | |
| 110 | |
| 125 | |
| 140 | |
| 160 | |
| 180 | |
| 200 | Sa brzinom |
| 225 | |
| 250 | |
| 280 | |
| 315 (Full-pass.) | |
| 355 | |
| 400 |
PE ventil bez čišćenja

| Prečnik (mm) | Pogled |
| 63 | Bez brzine |
| 90 | |
| 110 | |
| 125 | |
| 140 | |
| 160 | |
| 180 | |
| 200 | Sa brzinom |
| 225 | |
| 250 | |
| 280 | |
| 315 (Full-pass.) | |
| 355 | |
| 400 |
Sa jednim čistkom

| Prečnik (mm) | Pogled |
| 63 | Bez brzine |
| 90 | |
| 110 | |
| 125 | |
| 140 | |
| 160 | |
| 180 | |
| 200 | Sa brzinom |
| 225 | |
| 250 | |
| 280 | |
| 315 (Full-pass.) | |
| 355 | |
| 400 |
Sa dva udubljenja
Nijansi uređivanja
Napomena U Ruskoj Federaciji trenutno podzemna dizalica za vodu ili gas nema dovoljno široku primenu. Ipak, mnoge građevinske organizacije pokazuju zdrav interes za takve građevinske uređaje.

Ovi ventili u podzemnoj ili podzemnoj verziji mogu se koristiti u gasnim postrojenjima. Ali, istovremeno, uputstvo ne preporučuje korišćenje bunara duž kursa.
Stvar je u tome što pravila za rad u ovim tenkovima i preporuke za njihovo otvaranje značajno komplikuju rad ventila ove vrste.
OAO "Gazprom" je razvio određene tehničke standarde u kojima se ugrađivanje ventila od polietilena (cijena ne uzima u obzir) poželjno radi bez bunara.
Dobro postavljanje se preporučuje samo u slučajevima kada je cevovod instaliran na velikoj dubini, što ne dozvoljava korištenje teleskopskog aktuatora za podešavanje.

Postoji standardni STO GAZPROM 2-2.1-093-2006, koji pokazuje (ilustrovana) rješenja za projektovanje, izgradnju i rekonstrukciju plastičnih cjevovoda za gasne mreže.
Opisuje niz mogućnosti za postavljanje PE kugličnih dizalica koje se mogu izvesti:
- Direktno na kolovozu (usred puta);
- Direktno na kolovozu (usred puta) i na trotoarskim trotoarima, kao iu parkovskom području;
- Pod tepihom (teretom) u parkovskom parku ili šumskom pojasu.
Zaključak
Instalacija PE slavine s vlastitim rukama za vodovodne instalacije u ovom trenutku je donekle teška, jer za to nema posebne opreme koja se isporučuje kroz mrežu prodavnica hardvera.
Ako govorimo o plastici, onda u privatnom sektoru prednost daje polipropilenu i trenutno ovaj materijal u potpunosti zadovoljava potrebe stanovnika privatnog sektora.