Kako izgraditi kuću za bunar, uradite to sami: saveti i
Bunar je izvor vode za piće, što znači da mora biti zaštićeno od uticaja okoline i zagađenja. Istovremeno, obične barijerske strukture nemaju vrlo dobar izgled i mnogi vlasnici takvih struktura žele da ih dodatno dekorišu kako bi kombinirali praktičnost i odlična dizajna rješenja. Zbog toga je veliko interesovanje za mnoge vlasnike takvih struktura pitanje kako napraviti kuću za bunar sa vlastitim rukama.

Fazni proces
Za početak, potrebno je reći da ako napravite takvu kuću, ona mora biti čvrsta i sposobna da ispuni sve zahteve korisnika. U ovom slučaju, neophodno je smanjiti sve troškove na minimum, jer ovaj dizajn ne bi trebalo da pređe trošak samog izvora. S obzirom na to, profesionalni zanatlije savjetuju da koriste te građevinske materijale koji su najlakši za područje boravka.

Projekat
- U srcu svake gradnje mora biti projekat. Trebalo bi da prikaže sve čvorove i glavne strukturne elemente tako da je proces erekcije što jasniji za izvođača.
- Važno je napomenuti da mnogi vodiči koji govore o tome kako izgraditi kuću na bunaru sa svojim rukama preporučuju stavljanje crteža svoje proizvodnje u glavni dizajn same strukture. Činjenica je da neke faze stvaranja mogu biti blisko povezane jedni sa drugima i takva proizvodnja će pomoći uštedi vremena i novca.
- Takođe, cjelokupno crtanje kuće za bunar će pružiti priliku da dobijete ideju o izgledu finalnog proizvoda.
Savjet! Profesionalci preporučuju korišćenje gotovih građevinskih rješenja, ako nema mogućnosti za samostalnu proizvodnju. Takođe možete naručiti crteže od profesionalaca, ali za tako jednostavnu strukturu veoma je rasipan.

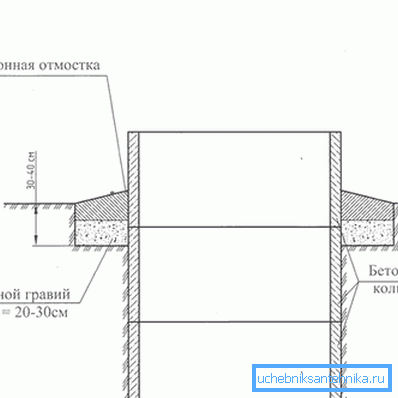
Baza
- Prvo, morate napraviti temelje za buduću izgradnju. Istovremeno, moguće je koristiti i slepu površinu bunara, pomalo modifikacijom sistema oplate kako bi se dobila potpuna baza betona.
- Treba napomenuti da je prilikom sipanja neophodno prethodno napraviti odvodni sistem za odvodnjavanje kišnice. Da biste to uradili, koristite poseban oluk koji je instaliran u oplatu.

- Takođe morate odmah razmotriti proces montaže podrške. Ukoliko se u budućnosti koriste proizvodi od drveta ili opeke, onda je dovoljno da se u podnožje podignu mali štapići armatura, a prilikom upotrebe profilne cijevi, stručnjaci preporučuju instaliranje na fazi postavljanja fosfata.
- Vredi napomenuti da su neke od prednosti, govoreći kako napraviti kuću iznad bunara svojim rukama, preporučujemo da dodate malu količinu tečnog stakla u rješenje. Ovo će obezbediti dodatnu zaštitu od vlage i vlage.

- Dimenzije osnove treba da budu takve da će nakon izgradnje ostatka konstrukcije na njemu biti pogodno sjediti sa kantom i istovremeno proizvesti vodu.
Savjet! Stručnjaci preporučuju korišćenje baze kao veliku slepu površinu. Zbog toga ispod njega treba postaviti posteljinu šljunka i grubog peska kako bi se stvorio neka vrsta drenaže za odvod kišnice iz zidova bunara.

Zidovi
- U ovoj fazi je neophodno postaviti male zidove koji će služiti kao mačevanje. Međutim, neki dobri vlasnici više vole da naprave ove konstrukcije ispod plafona kako bi dobro koristili bunar i sa bočnom kišom i zaštitili se od vjetra.
- Pri korišćenju drveta ili opeke, prvo su podignute stubove, koje će morati da podrže krov, a tek onda grade zidove.
- Kada se kao nosač koristi profilna cijev, praznine između nje se šišu metalnim limovima obojenog pocinčanog čelika.

- U proizvodnji zidova je vredno razmisliti da uputstvo za ugradnju savjetuje da se odmah brine o proizvodnji širokih vrata, koje se mogu držati sa kantama. Ne postavljajte vrata u takve strukture, već neki gospodari to rade.
Savjet! Neki vlasnici bunara postavljaju rasvjetu u takve strukture. Veoma je zgodno ako morate provoditi vodu uveče ili noću.

Krov
- Prije svega, neophodno je reći da je za uštedu novca najbolje proizvesti jednostruke strukture. Oni su praktičniji i ne zahtevaju veliku količinu materijala.
- Treba napomenuti da je izgled te vrste krova veoma teško napraviti prelepo. Zbog toga najčešće majstori koriste žlebove i čak sisteme sa višestrukim nagibom, čija cijena može biti jedan i po puta veća.

- Pri izboru krovne obloge obično koristite isti materijal koji je korišten za kuću. Ovo je odlično rešenje za dizajn koje se uklapa u skoro sve unutrašnje dvorište.
- Takođe na krovnoj instalaciji olujne vode i sistema za odvodnjavanje, uzimanje odvoda na stranu nasuprot ulaznog otvora.

- Treba napomenuti da ovaj vodič opisuje stvaranje kompletnog dizajna koji će vam omogućiti da udobno koristite uređaj u bilo koje vrijeme i vrijeme dana. Međutim, postoje neke opcije proizvodnje, čija je svrha samo zaštita samog izvora od vanjskog utjecaja u obliku padavina. Sasvim su primitivni i napravljeni su u obliku krošnje ili krova preko bunara.
Savjet! Profesionalni zanatlije ne preporučuju da krov za takve strukture bude preveliki i težak, tako da to ne utiče na malu bazu.

Zaključak
Gledajući video u ovom članku, možete dobiti detaljnije informacije o tome kako samostalno kreirati malu kuću iznad bunara. Takođe, zasnovano na tekstu koji je gore prikazan, treba zaključiti da proces izrade takvih struktura ne traje puno vremena, a za njegovo sprovođenje neće biti potrebno znanje ili veštine. Međutim, prije početka rada potrebno je pripremiti kvalitetan i dokazan projekat koji će služiti kao vodič.