Kako je opravdano mini umivaonik
Tako se dogodilo da većina toaletnih soba u našim domovima ne može da se pohvali velikim kvadratom. Ali ispostavlja se da to nije razlog za odbijanje osnovnih ugodnosti. Mini sudopera za toalet dubine od 20 cm, savršeno se uklapa u unutrašnjost.
Naravno, s takvim dimenzijama, potpuna jutarnja vežba je blago teška, ali da bi se isprčile vaše ruke, sasvim je dovoljno. Štaviše, moderno tržište nudi širok izbor ovih sudopera.

Od čega su napravljene granate i šta su oni?
Mini tone za toalet, iako su skromni po veličini, ali u smislu njihovih glavnih karakteristika i broja ponuda na tržištu su mnogo inferiorniji od velikih kolega.
Materijal za proizvodnju
Kao što je već pomenuto, mini umivaonici za toalet su napravljeni od istih materijala kao i ostali vodovodni planovi takvog plana (pogledati i članak Tulip Sink: karakteristike izbora, ugradnje i upotrebe).
Većina ponuda na tržištu keramike i stakla, iako prirodni kamen, kompozit i metal nisu mnogo inferiorniji u rasponu.

- Keramička sanitarija od porcelana i grnčarija tradicionalno se smatra klasikom. Ispunjava apsolutno sve sanitarne zahteve i standarde. Glazura koja pokriva sudopere lako se pere na bilo koji način i poseduje zavidan radni vijek. Cijena porcelana je naravno viša i ovi proizvodi traju duže, ali sa opterećenjem koji se planira za ovaj vodovod, sasvim je moguće dobiti budžetsku faženciju.
- Najširi izbor boja i impresivan raspon staklenih proizvoda. U proizvodnji takvih vodovodnih instalacija je mnogo jeftinije od porcelana, stoga je stakleni mini-sudoper sada veoma popularan. Staklo privlači ne samo zbog svoje demokratske vrednosti, takvi proizvodi su uvek lepi i originalni. Kaljeno staklo može biti providno, matirano, žljebano ili glatko, ali u svakom slučaju to neće biti obična stvar.

Savjet: savremena vodovodna cijev je prilično teška, ima mnogo nečistoća. Kao rezultat, mrlje i beličasto cvetanje stalno se pojavljuju na glatkoj providnoj posudi. Zbog toga, ako planirate ugraditi mini umivaonik od 22 cm ili više, bolje je kupiti mat verziju sa valovitim premazom.

- Minicamin iz prirodnog kamena sastaje se manje češće. Ovaj materijal se smatra najskupljim, tako da proizvodni modeli praktično nisu proizvedeni. Većina njih su čaše napravljene za određeni red. Prirodni kamen je nesumnjivo lep, ali je u službi veoma kapricičan. Ne preporučuje se čišćenje sa agresivnim jedinjenjima ili abrazivnim prahom. Pored toga, neki minerali imaju sposobnost da apsorbuju mirise, što u ovom slučaju nije poželjno.
- Composite je druga stvar.. Sastoji se od 80% čipsa od prirodnog kamena i 20% kompozitnih smolnih smola. Kao rezultat toga, gotovi proizvod se vizuelno ne razlikuje od prirodnog kamena, samo je nedostatak svih nedostataka inherentnih prirodnim mineralima. Štaviše, zahvaljujući modernim bojama, možete postići 100% sličnost sa bilo kojim prirodnim, prirodnim mineralima.

- Metalni vodovod je manje poznat, uglavnom proizvodi od obojenih metala bakra i bronze. Imaju savršeno glatku površinu, koja nije uvijek zgodna, na ovoj površini možete videti sve ogrebotine i mrlje. Osim toga, ove posude su prilično bučne, ako staklo, keramika ili kamen potiskuju zvuk pada vode, metal naprotiv jača.
Vrste proizvoda

- Opcije suspenzije takvi projekti postoje kao i kod tradicionalnih proizvoda. Ali najčešće je otvorena nezavisna suspenzija. Istovremeno, sifon za mini školjku je poseban deo kompozicije. Po pravilu se proizvode u niklovanoj.
Oblik sifona se bira u zavisnosti od opšteg pravca u unutrašnjosti. Može imati meke, zaobljene linije ili, naprotiv, biti bliže sječenom tehnokratskom stilu.
- Ponekad u malim prostorijama teška posuda se postavlja na elegantnoj nozi, takvi proizvodi su bliži tradicionalnom tulipanu. Mini limuzina s umivaonikom, izgleda kao jedinica.
- Što se tiče operacije, mini umivaonici sa širinom od 400 mm su mnogo pogodniji. Ovaj dizajn lako se uklapa u skoro svaku sobu. Istovremeno, težina same posude nije bitna, jer se zasniva na kućištu.
Kutija ispod umivaonika nije samo lepa, već i praktično iz čisto praktične tačke gledišta. Može da skladišti deterdžente za čišćenje ili postavljanje prenosivog bojlera.

Nekoliko instalacija savjeta
Instrukcije za instalaciju do-it-yourself-u na mini sudoperi su mnogo jednostavnije nego kod dizajna tradicionalne veličine. Ovo je razumljivo jer su čaše malih dimenzija relativno lagane, čak i ako dolaze sa ormarićem za toalet.
Za instalaciju, potreban vam je nivo konstrukcije, bušilica, poželjno sa funkcijom perforacije, odvijač sa setom bitova i set ključeva za zavrtanje šipki ili sidrenih vijaka.
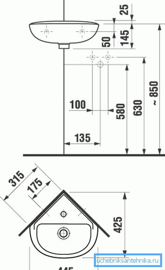
Optimalno rastojanje od poda do gornjeg presjeka konstrukcije je 85 cm. Potrebno je započeti instalaciju markiranjem tačno ove osnovne horizontalne linije.
Ponašanje treba da bude striktno na nivou. Nakon toga, potrebno je pričvrstiti posudu na zid i označiti prostor za postavljanje rupa.

Savjet: kako bi se bušilica ne klizna preko pločice, a glazura na pločici je manje puknuta, možete pred-pričvrstiti traku sa građevinskom trakom. Zbog povjerenja, potrebno je napraviti malu zarezu na ulazu u svrdlo;
Nakon što su sve rupe izbušene, u njima se postavljaju plastični zatvarači i pričvršćuju se pričvrsne vijke. Da bi bilo jednostavno sjesti posudu, šipke treba proširiti oko 20 mm iznad lavaboa. Ne zaboravite da je posuda na svim mestima pričvršćena kroz brtve, metalne vijke ne treba direktno da kontaktiraju sa tijelom umivaonika.
Preporučljivo je odmah postaviti mikser na posudu. Činjenica je da je dole pričvršćen sa posebnom perforiranom mašinom, koja je pričvršćena metalnim vijkom. A ako visite posudu na zidu, biće vam vrlo neugodno da kasnije montirate sami mikser.

Savjet: kao razmak između posude i miksera i razmaka između zida i same strukture, potrebno je puno popuniti bilo zaptivače. Najčešće se koristi za ovaj providni silikon.
U ovom članku prikazani su glavni modeli mini sudopera.
Zaključak
U zaključku bi želeli da primetimo da mini sudopere za toalet nisu samo pogodna sanitarija, već i svetao komad unutrašnjosti koji može napraviti neku šarmu čak iu tako malu sobu (pogledati i članak Sudoper od keramičkog granita - ljepota prirodnog kamena).
