Duboki tuševi tuša: prednosti, konzervacije, karakteristike
Ako verujete u statistiku, lider između prodaje u odgovarajućoj kategoriji sanitarne opreme je zatvoren (tj. Opremljen krovom) tuš kabine sa dubokim panom. Da biste razumeli koje su prednosti takvih rešenja, potrebno je da detaljnije proučite dizajn ovih proizvoda.

Opis proizvoda
Karakteristike tuš kade
Tuš za tuširanje je jedan od najvažnijih delova tuš kabine. Deluje kao rezervoar za vodu, kao podrška za prati osobu i kao okvir za ogradu. Generalno, prilično je teško precijeniti njegovu vrijednost.
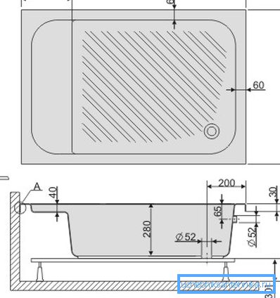
Po pravilu, osnova kabine je mala korita sa obodom postavljenom iznad dna do visine od 1-2 do 15-18 cm. U donjem dijelu nalazi se rupa za odvod vode koja je opremljena zaštitnom rešetkom i zatvaračem, tako da ako je potrebno može se popuniti skoro do ivice.

U zavisnosti od visine strane konstrukcije, uslovno ne podelite više grupa:
- Mala - do 5 cm.
- Srednje - do 12 - 15 cm.
- Duboko - od 15 cm.
Dakle, kada se u mreži vidi opis "tuš kabine s dubokim korpom 150x80 cm", možemo sa sigurnošću reći da će koristiti pravougaoni ili zaobljeni kontejner dužine 1,5 m, širine 80 cm i barem kao osnove. 15 cm
Treba napomenuti da se, za razliku od malih i srednjih sorti, u posebnom okviru montiraju duboke palete u skoro 100% slučajeva. To je zbog značajne visine strane, kao i potrebe za podizanjem dna iznad poda za povezivanje sifona na kanalizaciju.

Obratite pažnju! Izuzetak se pravi kada se kanalizacijski sistem postavlja u debljinu poda, a dno se može postaviti na njegovu površinu. Ali i ovde, čak i relativno mala tuš kabina sa dubokim panom 70x90 cm treba da se naslanja na nešto, tako da treba postaviti okvir za strane.
Snage i slabosti
Dubina osnove je jedan od najvažnijih kriterijuma za odabir kabine za tuširanje.
Duboke vrste imaju niz prednosti koje objašnjavaju njihovu značajnu popularnost:

- Prvo, velika strana pouzdano štiti pod tušem od kapljica. Naravno, važnu ulogu ovde igra kvalitet pečata na vratima i zaptivanje jedinice za pričvršćivanje bočnih zidova, ali ako voda tek teče kroz ivice palete, onda će se podmlakati.
Obratite pažnju! Čak i ako imate ugrađenu kabinu za tuširanje - kupatilo se i dalje suočava sa periodičnim vlaženjem. Dakle, hidroizolacija poda i ugradnja poda koji je otporan na vlagu je minimalan potreban za smanjenje rizika trajne vlage i plesni.
- Drugo, dizajn sa visokim pločama razlikuje se u većoj krutosti. Dugotrajna paleta ovde deluje kao neka vrsta baze, a time i kraći bočni zidovi imaju manje stresa na krivini. Kao rezultat toga, oni su manje deformisani, što značajno smanjuje rizik od šarke ili šarnira na vratima vrata.
- Na kraju, ako imate veliki tuš sa dubokim tušem dimenzija 120 x 90 cm, onda se može koristiti kao sedna kupka. Naravno, nivo udobnosti će biti nešto niži, ali u svakom slučaju, možete se oprati ne samo stojeći, već ležeći.
- Dimenzije kabina za tuširanje sa dubokim ležištem takođe su veoma raznovrsne. Neki modeli su predstavljeni na slikama u ovom članku, a drugi proizvodi možete pronaći u katalogima kompanija koje su predstavljene na našoj web stranici.
Ako govorimo o nedostacima, onda morate pomenuti sledeće:
- Proizvodi sa malom površinom, kao što je tuš sa dubokim panom 80x80 cm, biće prilično blizu. Istovremeno, da bi prevazišao stranu, moraće da podigne visoku nogu, što nije baš zgodno.

- Visoke strane stvaraju dodatno opterećenje na ramu i bazi. Zbog toga je vrijedno sjediti na njima (čak i ako su za to predvidjene posebne projekcije) samo ako ste sigurni u pouzdanost instalacije. Međutim, u pravičnosti treba napomenuti da to nije greška, već samo element koji treba uzeti u obzir.
- Veliki broj paleta je takođe podložan operativnom opterećenju. Velika površina ploče dovodi do činjenice da je deformisana, što znači da se mikrorakli pojavljuju u emajlu ili akrilu tokom vremena.
Ključni faktor je cijena: visokokvalitetni proizvodi, kao što je tuš kabina sa dubokim ležištem od 110-110 cm od Cersanita ili Ravak, biće prilično skup, a jeftiniji analogi se ne razlikuju po kvalitetu i trajnosti.
Kako odabrati odgovarajući model

Izbor dizajna, vredi obratiti pažnju na takve detalje:
- Paleta treba izrađivati od izdržljivog materijala: akril, keramika, nerđajući čelik ili emajlirani čelik. Što je deblja i masivnija osnova, to je bolje.
- Površina palete treba da bude savršeno ravna i glatka. Prisustvo područja različite boje, pukotina i hrapavosti ukazuje na kršenje proizvodne tehnologije.
- Treba obratiti pažnju na pogrešnu stranu. Takođe, ne bi trebalo da postoje kvarovi koji smanjuju čvrstoću materijala: pukotine, blistere, udari, praznine itd.
Preporuke za instalaciju
Uprkos nekim karakteristikama, takvi proizvodi se mogu instalirati ručno.
Naravno, prisustvo masivne osnove čini svoja prilagođavanja, ali u svakom slučaju instrukcija nije složena:

- Za početak pripremamo prostor za instalaciju sistema. Da bi to učinili, vršimo hidroizolaciju svih površina koje mogu doći u kontakt sa vodom. Posebnu pažnju posvetimo podu pod tušem i pored njega, kao i susednih područja zidova.
- Ako površina ispod palete ima nepravilnosti, moraju se ukloniti. Da biste to uradili, demontirajte podnu oblogu i podignite podnožje sa perforatorom. Zatim sipajte betonsku košuljicu, koju pažljivo izravnavamo i osušimo.

Obratite pažnju! Ove aktivnosti se sprovode samo ako postoje ozbiljni nedostaci ili pristrasnost na podu. U drugim situacijama dovoljno je nivelirati paletu pomoću pokretnih elemenata rama.
- Tada počinjemo da radimo sa samom bazom.. Ako imamo tuš kabinu sa dubinom od 800x800 mm (dovoljna veličina tekućine), onda će okvir lako naći, ali u drugim situacijama ćete morati provesti vrijeme u potrazi za odgovarajućim modelom ili sami sklopiti strukturu nosača sa profilne cijevi odgovarajućeg odjeljka.
- Pričvršćujemo okvir na paletu pomoću čeličnih vijaka i specijalnih ušica na sivi strani proizvoda. U ovom slučaju, rebra mora da se prilagodi materijalu, ali da je ne deformiše. Noge su izložene na takav način da su približno na istom nivou.
- Na zidu postavljamo specijalne trake dizajnirane da se ubacuju u stranu palete.

- Prekidamo paletu u ispravnom položaju i postavimo je na svoje mesto.. Zatim, prema stepenu konstrukcije, ispravku pozicionira proizvod okretanjem vijaka na nogama.
Obratite pažnju! Sami noge treba da budu strogo vertikalni, jer u suprotnom velika masa vode u dubokom sumpu može dovesti do njihove deformacije i izmještanja.
- Nakon izravnavanja podižemo bazu i priključimo sifon na njega kako bismo odvodili vodu.. U budućnosti pokušavamo da ne dozvolimo da se struktura rasveti, kako ne bi morala da se ponovo prilagođava položaj podrške.

Sva druga radnja se obavlja na uobičajen način. Nakon završetka instalacije, zatvorimo odvod i popunjavamo paletu vodom kako bismo proverili njegovu tišinu i kvalitet instalacije.
Zaključak
Naravno, priča o tome kako odabrati tuš kabinu sa dubokim ležištem i kako pravilno montirati je uvodna. Kada kupujete određeni model, obratite pažnju na druge karakteristike štanda.
Međutim, gore navedene informacije, kao i informacije koje se mogu dobiti prilikom gledanja video zapisa u ovom članku, biće dovoljne da ne bi napravile dosadne greške tipične za početnike.