Dimenzije instalacije wc-a: instalacione karakteristike
Kada je u pitanju unutrašnjost takvih prostorija kao što je kupatilo ili toalet, odmah se postavlja pitanje kako spasiti prostor. U ovom slučaju najčešće se ovaj problem susreće upravo prilikom instalacije sanitarnih uređaja. S obzirom na to, visina instalacije za toalet je veoma važna jer zauzima najviše prostora u sobi.

Vrste ugradnje i njihove karakteristike
Za početak, mora se reći da se ovaj sam koncept može opisati kao uvođenje proizvoda u unutrašnjost sobe. Istovremeno, dimenzije instalacije za WC školjku su zapravo područje u kojem će se uređaj ugraditi. Međutim, treba odmah primetiti da se uobičajena instalacija ne odnosi na ovaj izraz, jer to znači isključivo ugrađenu opremu.

Montaža nosača
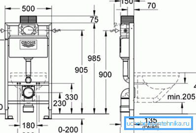
Ova vrsta instalacije podrazumeva uvod u zid određenih elemenata koji će služiti popravljanju rezervoara i posude. Ovo je obično instalacija za visinu toaleta od 820 ili više, gde je rezervoar za vodu fiksiran u zidu na specijalnom traku, a donji deo može biti nezavisan, ali i na čvršoj suspenziji.

Važno je napomenuti da je za realizaciju takvog projekta neophodno sprovesti pomoćnu strukturu, jer ona može izdržati takve opterećenja. Dubina instalacije za toalet ne dozvoljava vodoinstalom da izgovara.
U stvari, dobijamo dva fiksna područja, od kojih je jedna dizajnirana za rezervoar, a druga ima oblik pinova za postavljanje posude.

S obzirom na ove karakteristike, širina instalacije za WC školjku je odabrana isključivo na osnovu dimenzija instaliranih uređaja. Međutim, većina majstora donosi samo dno kanala, što je neophodno za ugradnju odvodne cijevi i obujmice.
Savjet! Izbor specifične vrste konstrukcije, neophodno je na osnovu specifičnih tehničkih uslova prostorije i modela vodovoda. Samo ako se popravka obnovi sa sanacijom, možete prilagoditi enterijer za željenu instalaciju da biste instalirali toalet.

Instalacija rama
- Za takve radove, visina toaleta sa instalacijom sa poda je veoma važna. Činjenica je da je uz takvu instalaciju u zid postavljen punopravni okvir koji nije samo fiksiran na ivicama već stoji na njegovoj bazi.

- S obzirom na prisustvo takve dodatne konstrukcije, na osnovu toga se biraju minimalne dimenzije za instalaciju za WC školjku. Istovremeno, vredi napomenuti da većina proizvođača proizvodi sve neophodne komponente za instalaciju, uključujući i sam okvir, koji odmah rešava veliki broj problema s dimenzijama.
- Važno je napomenuti da veličina instalacije pod WC-om takvog plana može uključiti određeni proturječni sistem cijelog sistema sa zida. Ovo je vrlo zgodno ako fiksacija nije izvedena na podu, što također omogućava ovu vrstu instalacije.

- Morate takođe reći da je takav sistem lakše instalirati sopstvenim rukama, jer sam okvir pomaže u pozicioniranju i fiksiranju vodovoda.
Savjet! Ponekad se izduvni delovi instalacije mnogo lakše šiju pomoću suhog zidu ili drugog sličnog materijala nego da se duboko udari u zid.

Preporuke stručnjaka
- Treba napomenuti da je uputstvo za instalaciju snažno preporučuje da čvrsto popravite i lamele i okvir. Ukoliko to nije učinjeno, ili čak i mali lift može se pojaviti, onda tokom operacije može doći do ozbiljnih problema za rješavanje koje će morati biti uklonjene.

- Slični dizajni izgledaju odlično i mogu uštedjeti prostor.. Međutim, oni zahtevaju određeni rad, čija cijena je ponekad dosta visoka.
- Instaliranje sličnog vodovoda je neophodno ne samo da pravilno izračunate dimenzije, već i da razumijete koje će opterećenje biti na finalnom proizvodu. Zbog toga je veoma važno striktno pratiti savjete date u uputstvu za instalaciju za određeni model, koji je obično uključen u paket.

Zaključak
Nakon što ste detaljno proučili video u ovom članku, možete dobiti detaljnije informacije o takvim strukturama i njihovoj instalaciji. Takođe, na osnovu gore navedenog teksta, potrebno je zaključiti da je neophodno utvrditi vrstu instalacije na osnovu tehničkih uslova prostorije i modela vodovoda.